Property Details

7136 11 Street NE
Calgary (A2288987)

$15 per sq.ft.
3,967 ft²
Loading Listing...

Loan Term
Interest Rate
Loan Amount
Annual Tax
Ann. Insurance

* Amounts are estimates only. Final payment amounts may vary.

Description

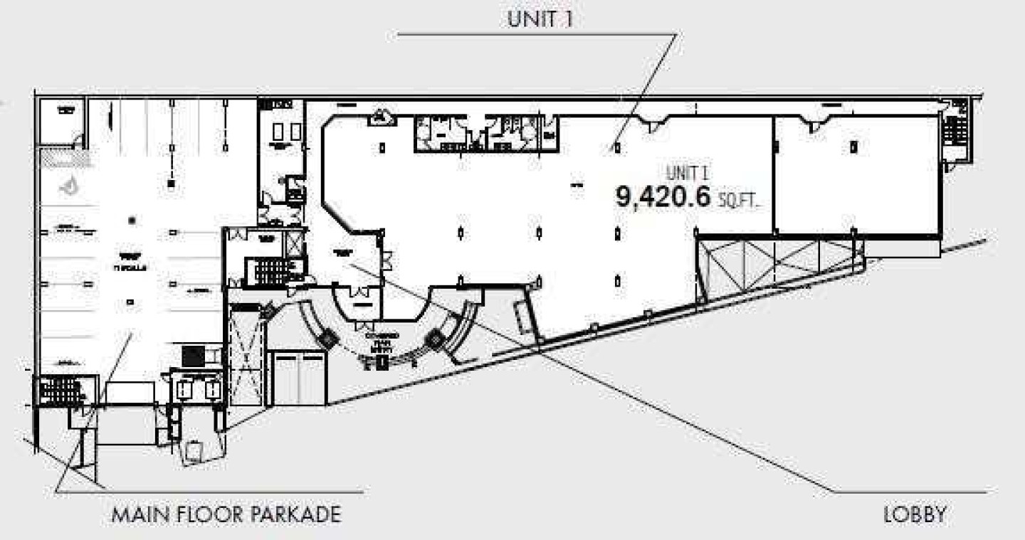
Welcome to the Swift Centre at 7136 11th Street NE, Calgary – a modern, professionally managed office building offering flexible leasing solutions tailored to today’s businesses. Whether you need a single unit or wish to combine multiple spaces, our layouts are adaptable to meet your specific requirements. Each unit features high-quality construction with thoughtful design, and every floor is equipped with washrooms for added convenience. The main floor is ideal for a daycare, with a dedicated grass playground located at the side of the building – a rare and valuable feature for childcare operators. The third floor offers access to a beautiful rooftop patio and an open atrium, perfect for informal meetings or relaxation. The building includes 80 underground parking stalls and 11 surface stalls for both tenants and visitors. Swift Centre is conveniently located just minutes from Deerfoot City, providing quick access to major retailers such as Walmart and Canadian Tire, along with excellent connectivity to major transportation routes. Zoning allows for a wide range of uses including child care services, indoor recreation, medical practices, and more. This is a prime opportunity to position your business in a well-connected and thoughtfully designed location. Contact us today to schedule a tour

Property details

Basic Info

MLS® #
A2288987
Property Type:
Commercial
Subtype:
Office
Subdivision:
NONE
Price
$15 per sq.ft.
Sale/Lease:
For Lease
Size:
3,967 sq.ft.
Year Built:
2017 (9 years old)

Building Info

Structure Type:
Office
Garage:
No
Fence:
Basement:
No
Inclusions:
N/A

Listing Info

Possession:
Negotiable
Your Agent
  • Donna Wilson

    Sutton Group - Grande Prairie Professionals
    780-228-2224

    Email

    Ask a question
    Share This Listing
    Related Properties
    Categories