Property Details

1, 412 Marten Street
Banff (A2287089)

$869,400
3
2
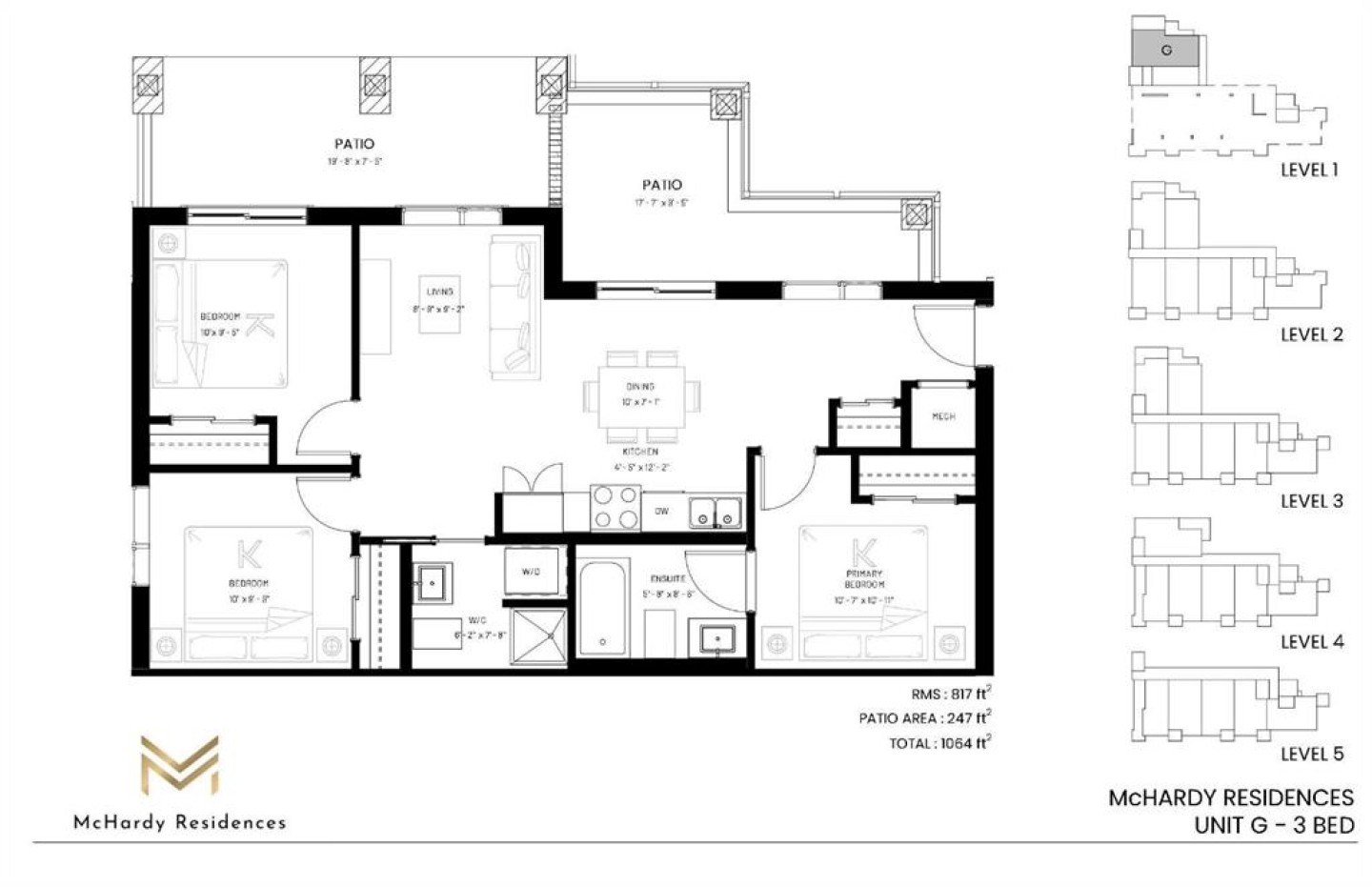
817 ft²
Loading Listing...

Loan Term
Interest Rate
Loan Amount
Annual Tax
Ann. Insurance

* Amounts are estimates only. Final payment amounts may vary.

Description

Located on a quiet street just minutes from downtown Banff’s cafés, restaurants, and everyday amenities, McHardy Residences introduces a rare opportunity to own a newly built home designed for full-time mountain living. This 3-bedroom, 2-bath STAND-ALONE residence offers something incredibly hard to find with no neighbors on either side, creating exceptional privacy and quiet. Step outside onto a massive 247 ft patio the perfect place to unwind after a day out on the trails. Large triple pane windows frame fantastic mountain views, while the thoughtful layout blends comfort and function for those who call Banff home year-round. Set in a peaceful neighborhood yet close to the energy of downtown, this unique property delivers the lifestyle locals are looking for space, serenity, and a true connection to the mountains. Additional features include quartz countertops, stainless steel appliances, in suite laundry, vinyl flooring, and assigned storage lockers providing valuable space for all of your mountain gear.

Property details

Basic Info

MLS® #
A2287089
Property Type:
Residential
Subtype:
Apartment
Subdivision:
NONE
Price
$869,400
Sale/Lease:
For Sale
Size:
817 sq.ft.
Bedrooms:
3
Bathrooms:
2
Year Built:
2027 (-1 years old)

Building Info

New Construction:
Yes
Structure Type:
Low Rise (2-4 stories)
Building Style:
Apartment-Single Level Unit
Garage:
No
Parking:
Off Street, Parking Pad
Fence:
Basement:
No
Features:
Closet Organizers, Kitchen Island, Low Flow Plumbing Fixtures, No Animal Home, No Smoking Home, Open Floorplan, Quartz Counters, Separate Entrance
Inclusions:
N/A
Appliances:
Dishwasher, Electric Range, Microwave Hood Fan, Refrigerator, Washer/Dryer Stacked
Laundry:
In Unit
Exterior Features:
Balcony, BBQ gas line
Patio/Porch Features:
Deck, Front Porch

Neighborhood Info

Nearby Amenities:
Lake, Park, Shopping Nearby, Sidewalks, Street Lights, Walking/Bike Paths

Condo/Association Info

Condo Type:
Conventional Condo
Condo Amenities:
Gazebo
Condo Fee:
$1,075
Condo Fee Includes:
Common Area Maintenance, Gas, Insurance, Maintenance Grounds, Parking, Professional Management, Reserve Fund Contributions, Sewer, Snow Removal, Trash, Water
Pets Allowed:
Yes

Lot / Land Info

Lot Features:
Corner Lot, Gazebo, Low Maintenance Landscape, Views
Zoning:
R5 Multi

Materials & Systems

Exterior:
Concrete,Mixed,Vinyl Siding,Wood Frame
Floors:
Vinyl Plank
Foundation:
Poured Concrete
Heating:
Baseboard, Natural Gas
Cooling:
None
Amenities:
Lake, Park, Shopping Nearby, Sidewalks, Street Lights, Walking/Bike Paths

Listing Info

Possession:
Upon Completion
Your Agent
  • Donna Wilson

    Sutton Group - Grande Prairie Professionals
    780-228-2224

    Email

    Ask a question
    Share This Listing
    Related Properties
    Categories