Property Details

Portion of NE 33 & NW 34 College Drive E
Brooks (A2286688)

$2,834,000
Loading Listing...

Loan Term
Interest Rate
Loan Amount
Annual Tax
Ann. Insurance

* Amounts are estimates only. Final payment amounts may vary.

Description

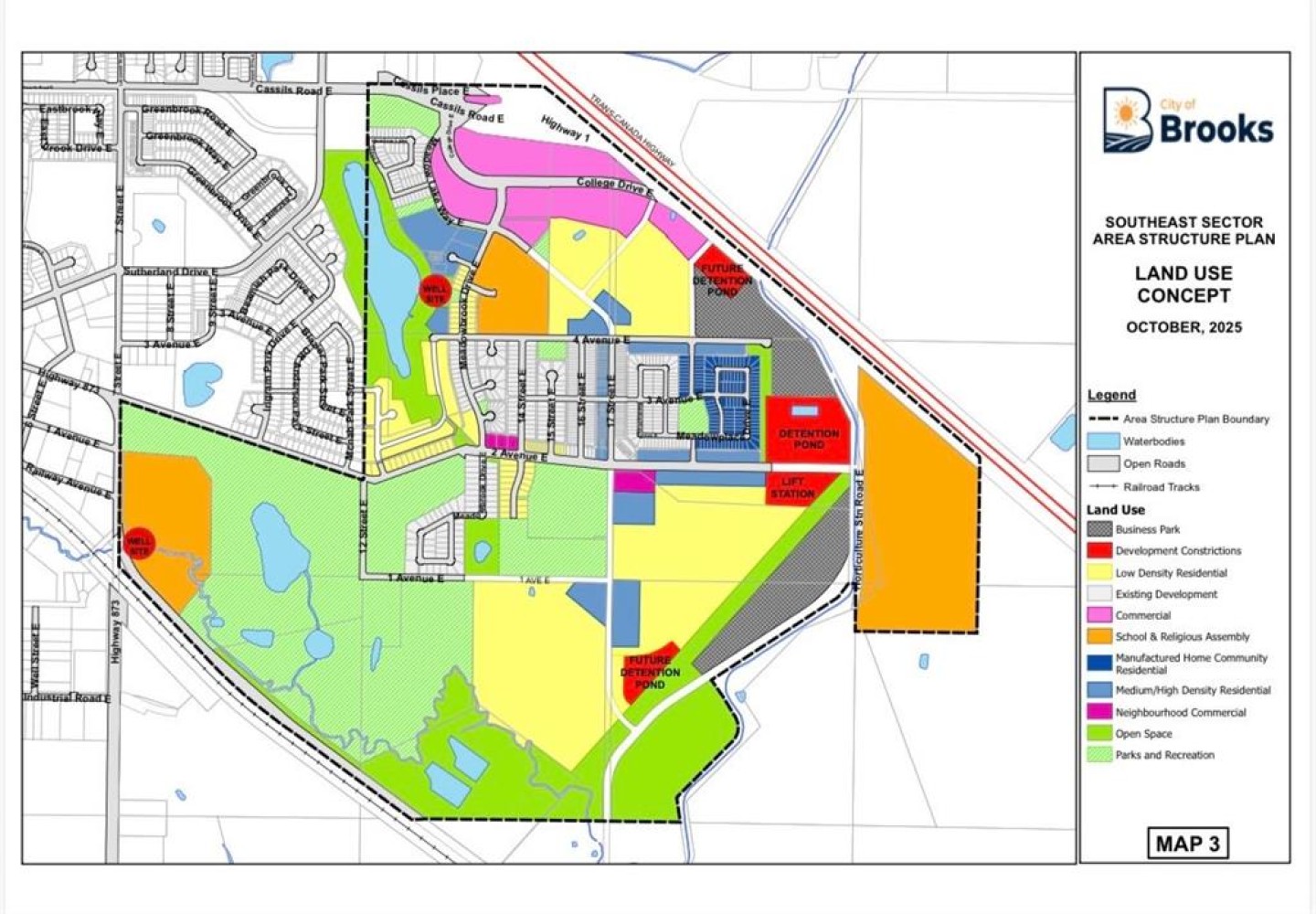
Prime 70.85 Acre Development Opportunity in Brooks. Seize this exceptional opportunity to develop 2 parcels totaling 70.85 acres of prime commercial, residential and multi-family land, strategically located on the south side of Highway 1 in the vibrant City of Brooks. Boasting Direct Control (DC) zoning, this property offers unparalleled flexibility, allowing for a wide variety of residential and commercial uses with a new Southeast Area Structure Plan now in place within the City of Brooks. Whether you envision a thriving mixed use community, commercial hub, or diverse residential development, these parcels are poised to accommodate your vision. Ideally situated near key amenities, including the Francophone School École Le Ruisseau, Medicine Hat College (Brooks Campus), and the established Meadowbrook residential neighborhood, this property is primed for growth. With its close proximity to Highway 1, it offers excellent visibility and accessibility, making it an attractive option for developers and investors. The surrounding area is experiencing new growth, presenting a strong market for both residential and commercial developments. Residential opportunities include single family homes, multi-family complexes, or a combination of both to cater to the needs of this thriving community. Additionally, the potential for commercial development ensures the creation of a well rounded and sustainable space. City of Brooks sewer lines run through this parcel. Explore the flexibility of Direct Control zoning and review the land-use bylaw and Southeast Area Structure Plan available in the supplement section of the listing for more details. Don’t miss out on this rare chance to shape the future of Brooks in a prime and expanding location!

Property details

Basic Info

MLS® #
A2286688
Property Type:
Land
Subtype:
Commercial Land
Subdivision:
NONE
Price
$2,834,000
Sale/Lease:
For Sale

Building Info

Garage:
No
Fence:
Fenced
Basement:
No
Inclusions:
n/a

Neighborhood Info

Nearby Amenities:
Other
Elem. School Dist.:
Grasslands Regional Division No. 6
High School Dist.:
Grasslands Regional Division No. 6

Lot / Land Info

Lot Size:
70.85 acres
Lot Features:
See Remarks
Legal Land Desc:
33-18-14-W4
Water:
None
Sewer:
None
Utilities:
None
Zoning:
DC

Materials & Systems

Amenities:
Other

Listing Info

Possession:
Immediate
Your Agent
  • Donna Wilson

    Sutton Group - Grande Prairie Professionals
    780-228-2224

    Email

    Ask a question
    Share This Listing
    Related Properties
    Categories