Property Details

8305 18 Avenue
Coleman (A2268444)

$749,000
4
3+1
1,749 ft²
Loading Listing...

Loan Term
Interest Rate
Loan Amount
Annual Tax
Ann. Insurance

* Amounts are estimates only. Final payment amounts may vary.

Description

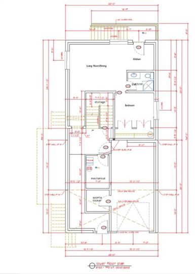
Exceptional new home build nearing completion in the Crowsnest Pass. This modern, open concept home has a total of 4 bedrooms and 3.5 bathrooms, with 3 bedrooms and 2.5 bathrooms in the main area, plus an Approved 1 bedroom, 1 bathroom lower suite with its own outside entrance. This beautifully designed suite also has its own laundry setup and a paved parking pad at the rear. The main floor has an open floor plan with high ceilings and big windows to breathe in the majestic mountain views. Bright modern kitchen with quartz countertops. This home will be finished top to bottom with complete appliance packages for both living areas. Each floor has its own heating/cooling controls and the purchase price includes the GST. Crowsnest Pass is a vibrant, active community close to Castle Mountain and Fernie Ski Resort. There are also incredible Nordic ski facilities, golf, fishing, and hundreds of miles of backcountry adventures. This home is a short drive up the mountain to the renowned York Creek Staging Area, with backcountry access for biking, quadding, sledding, and hiking.

Property details

Basic Info

MLS® #
A2268444
Property Type:
Residential
Subtype:
Detached
Subdivision:
NONE
Price
$749,000
Sale/Lease:
For Sale
Size:
1,749 sq.ft.
Bedrooms:
4
Bathrooms:
3 full / 1 half
Year Built:
2025 (0 years old)

Building Info

New Construction:
Yes
Structure Type:
House
Building Style:
1 and Half Storey
Garage:
Yes
Parking:
Single Garage Attached
Basement:
Full
Features:
No Animal Home, Open Floorplan, Quartz Counters, Separate Entrance
Fireplaces:
1
Inclusions:
n/a
Appliances:
Central Air Conditioner, Dishwasher, Electric Stove, Microwave Hood Fan, Refrigerator, Washer/Dryer
Laundry:
Multiple Locations
Exterior Features:
BBQ gas line
Patio/Porch Features:
Deck

Neighborhood Info

Nearby Amenities:
Fishing, Golf, Park, Playground, Pool, Schools Nearby, Shopping Nearby

Lot / Land Info

Lot Size:
0.11 acres
Lot Features:
Back Lane, Back Yard, City Lot
Zoning:
Residential

Materials & Systems

Roof:
Asphalt Shingle
Exterior:
Mixed
Floors:
Carpet, Ceramic Tile, Vinyl Plank
Foundation:
Poured Concrete
Heating:
Forced Air, Natural Gas
Cooling:
Central Air
Amenities:
Fishing, Golf, Park, Playground, Pool, Schools Nearby, Shopping Nearby

Listing Info

Possession:
Negotiable
Days on Market:
17
Your Agent
  • Donna Wilson

    Sutton Group - Grande Prairie Professionals
    780-228-2224

    Email

    Ask a question
    Share This Listing
    Related Properties
    Categories