Property Details

105, 251 Spruce Street
Rural Red Deer County (A2265646)

$564,900
3,332 ft²
Loading Listing...

Loan Term
Interest Rate
Loan Amount
Annual Tax
Ann. Insurance

* Amounts are estimates only. Final payment amounts may vary.

Description

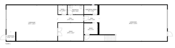
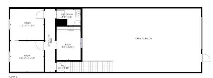
Ideal south side location in Piper Creek Industrial park, just south of the Westerner grounds/Centrium. This building was constructed in 2015 and shows near new, with a 2751 sq. ft. footprint (Condo plan measurement) and 3332 total developed space (Interior measurements) including mezzanine with exterior fenced storage compound. This incredible space has both a front drive 14 ft. overhead door and a rear drive 14 ft. overhead door with two separate bays and office space in the centre. The possibilities are endless, as the front could be used as a show room or additional shop space, or could be sub-let to a tenant. Also ideal deal for the hobbyist or business owner that desires some extra space for a man cave. Both the front and back shop/showroom spaces have overhead radiant heat, front bay is 24'x 34', rear bay is 24'x55'. The office mezzanine has force air. The upper mezzanine consists of two offices, a bathroom and a kitchen room. The lower central space below the mezzanine has another large room ideal for show room/reception or office space, plus two additional rooms that could be used for storage or small office and another bathroom. Front bay flooring has been left bare concrete as the new owner may decide they want carpet for a showroom, epoxy, paint, or leave as is, The front parking area is paved as well as the rear access and parking. Current lease expires March 15, 2026, tenant may wish to renew if desired by purchaser. Condo fee is $482 per month.

Property details

Basic Info

MLS® #
A2265646
Property Type:
Commercial
Subtype:
Mixed Use
Subdivision:
Piper Creek Business Park
Price
$564,900
Sale/Lease:
For Sale
Size:
3,332 sq.ft.
Year Built:
2015 (10 years old)

Building Info

Structure Type:
Industrial
Garage:
No
Fence:
Basement:
No
Inclusions:
NONE

Condo/Association Info

Condo Type:
Conventional Condo
Condo Fee:
$482

Acreage/Farm Info

Nearest Town:
Red Deer

Lot / Land Info

Lot Dimensions:
0.00X0.00
Legal Land Desc:
33-37-27-W4
Water:
Public
Sewer:
Sewer
Utilities:
Electricity Connected, Natural Gas Connected, Sewer Connected, Water Connected
Zoning:
BSI

Business Info

Business Type:
Auto Repair-Specialty,Construction/Contractor,Industrial ,Manufacturing,Other,Professional/Office,Real Estate,Recreation ,Warehouse,Wholesale

Materials & Systems

Roof:
Flat Torch Membrane
Exterior:
Other,Wood Frame
Foundation:
Poured Concrete
Heating:
Forced Air, Natural Gas, Radiant

Listing Info

Possession:
Negotiable
Days on Market:
34
Media & Video

Experience this property!

Virtual Tour
Your Agent
  • Donna Wilson

    Sutton Group - Grande Prairie Professionals
    780-228-2224

    Email

    Ask a question
    Share This Listing
    Related Properties
    Categories