Property Details

1923 9A Avenue NE
Calgary (A2263680)

$1,175,000
8
4
1,669 ft²
Loading Listing...

Loan Term
Interest Rate
Loan Amount
Annual Tax
Ann. Insurance

* Amounts are estimates only. Final payment amounts may vary.

Description

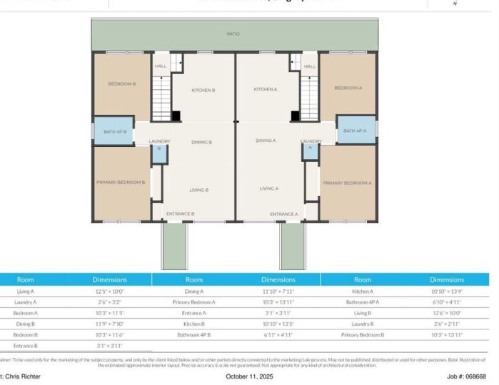
1919 & 1923 9A Avenue NE | Fully Renovated Side-by-Side Duplex with Legal Basement Suites and a Triple Garage on a Prime Corner Lot in Mayland Heights offering excellent income-producing results. Tenant interest in renting these units has been overwhelmingly good! 1919 upper lease $1700 + 60% utilities until October 31, 2026. 1919 Lower unit Lease is $1385 per month + 40% utilities until October 31, 2026. Both units here will get 1 garage space each. 1923 basement tenancy: Fixed term lease from November 15th 2025 to November 30th 2026, Total monthly payment: $1550.00, $1385 (rent), $15 (pet fee for 1 cat), $150 (1 single garage), Deposit: $1585, $1385 (damage deposit), $200 (pet deposit refundable), 40% utilities payable for 1923 Each side of this extensively renovated duplex features 2 good size Bedrooms up, large living room with plenty of natural light, fresh paint, new flooring, new kitchen cabinets, quartz counter tops and an island, new lighting, in-suite laundry, new bathrooms with a soaker tub and new windows. The fully renovated basement suites have a separate entrances and feature 2 bedrooms, a fully renovated bathroom, Large windows brand new kitchens and in-suite laundry — ideal for tenants or multi-generational living, plus a great common area and a gas line hook up. A total of 8 Bedrooms, 4 furnaces, 3 garage parking spaces and a total living area of 3,214 square feet. Three generous size garages provide ample parking and storage with plenty of on street parking for visitors. New roof and eaves on both the home and garage (2013) New furnaces (unit 1919 in 2018 and 2025 Unit 1923 in 2010 and 2025) On-demand hot water system in unit 1919 (2018) Upgraded electrical panels on unit 1919 and 1923 to 100 amp service Conveniently located near shopping, schools, transit, and other essential amenities, this property is a rare find — Full duplex under one title loaded with revenue potential. With legal suites and separate basement entrances, this property is perfectly designed for investors looking to maximize rental income. Don't miss out on this unique investment opportunity! Schedule your private viewing today and explore all the possibilities that this great property has to offer!!

Property details

Basic Info

MLS® #
A2263680
Property Type:
Residential
Subtype:
Full Duplex
Subdivision:
Mayland Heights
Price
$1,175,000
Sale/Lease:
For Sale
Size:
1,669 sq.ft.
Bedrooms:
8
Bathrooms:
4
Year Built:
1959 (66 years old)

Building Info

Structure Type:
Duplex
Building Style:
Attached-Side by Side, Bungalow
Garage:
Yes
Parking:
Alley Access, Garage Door Opener, Secured, Triple Garage Detached
Fence:
Partial
Basement:
Full
Features:
Kitchen Island, No Animal Home, No Smoking Home, Open Floorplan, Quartz Counters, Separate Entrance, Soaking Tub, Storage, Tankless Hot Water, Vinyl Windows
Inclusions:
4 fridges, 4 stoves, 4 dishwashers, 4 washers, 4 dryers, Garage door opener, 1 microwave hood-fan,
Appliances:
Dishwasher, Garage Control(s), Microwave Hood Fan, Refrigerator, Stove(s), Tankless Water Heater, Washer/Dryer
Laundry:
In Basement, Lower Level, Main Level, Multiple Locations, Upper Level
Exterior Features:
Other, Private Entrance
Patio/Porch Features:
None

Neighborhood Info

Nearby Amenities:
Playground, Schools Nearby, Shopping Nearby, Sidewalks, Street Lights, Walking/Bike Paths

Lot / Land Info

Lot Size:
0.14 acres
Lot Features:
Back Lane, City Lot, Corner Lot, Few Trees, Front Yard, Lawn, Level, Low Maintenance Landscape
Zoning:
R-CG

Materials & Systems

Roof:
Asphalt Shingle
Exterior:
Brick,Concrete
Floors:
Tile, Vinyl
Foundation:
Poured Concrete
Heating:
Forced Air, Natural Gas
Cooling:
None
Amenities:
Playground, Schools Nearby, Shopping Nearby, Sidewalks, Street Lights, Walking/Bike Paths

Listing Info

Possession:
Immediate,Negotiable
Days on Market:
38
Media & Video

Experience this property!

Virtual Tour
Your Agent
  • Donna Wilson

    Sutton Group - Grande Prairie Professionals
    780-228-2224

    Email

    Ask a question
    Share This Listing
    Related Properties
    Categories