Property Details

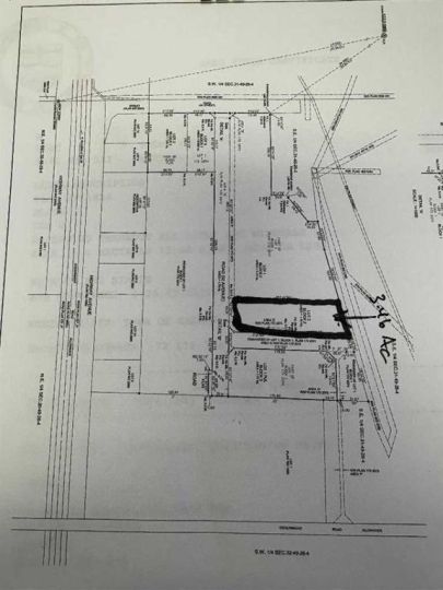
Lot 2, Block 2 Plan 2521824
Calmar (A2255825)

$1,034,540
Loading Listing...

Loan Term
Interest Rate
Loan Amount
Annual Tax
Ann. Insurance

* Amounts are estimates only. Final payment amounts may vary.

Description

3.46 Acres of Prime Industrial Land In Calmar on High Load Corridor. Located Just off Hwy 39. Zoned M1 Industrial District. Power and Natural Gas Available at Each Lot. Must Use Cisterns and Septic Tanks Only. Taxes have not yet been Assessed.

Property details

Basic Info

MLS® #
A2255825
Property Type:
Land
Subtype:
Industrial Land
Subdivision:
Calmar
Price
$1,034,540
Sale/Lease:
For Sale

Building Info

Garage:
No
Basement:
No
Inclusions:
N/A

Lot / Land Info

Lot Size:
3.46 acres
Legal Land Desc:
31-49-26-W4
Zoning:
M1-Industrial District

Listing Info

Possession:
30 Days / Neg
Your Agent
  • Donna Wilson

    Sutton Group - Grande Prairie Professionals
    780-228-2224

    Email

    Ask a question
    Share This Listing
    Related Properties
    Categories