Property Details

48 East Lake Green NE
Airdrie (A2204220)

$2,150,000
7,458 ft²
Note: This property may have a conditional offer. Talk to us for details.
Loading Listing...

Loan Term
Interest Rate
Loan Amount
Annual Tax
Ann. Insurance

* Amounts are estimates only. Final payment amounts may vary.

Description

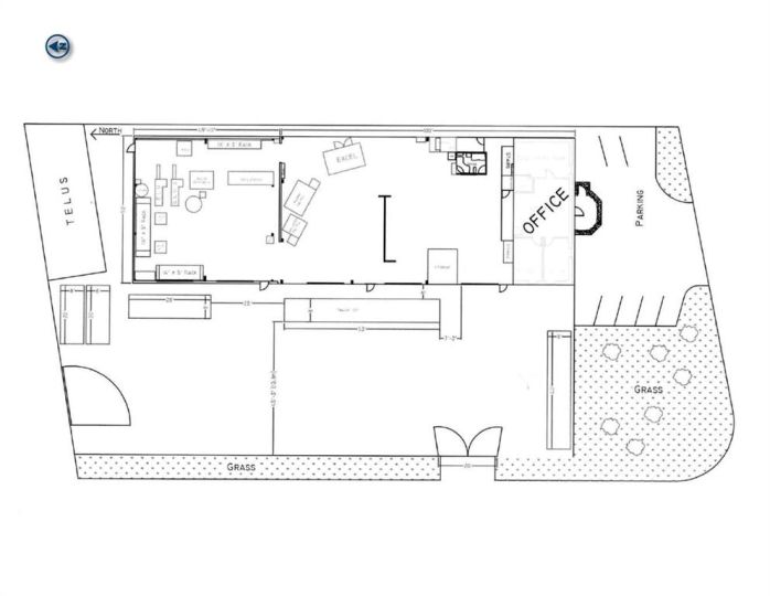
7,458 SF freestanding building on 0.56 Acres located at East Lake industrial Park. Ideal use for manufacturing and fabrication. In this industrial building includes 920 SF of main floor office and 920 SF of bonus mezzanine. Wide and functional warehouse, which includes 5 drive-in doors (12 Ft w x 14 Ft h), heavy power at 400 Amps (TBV), 16 Ft clear height, and compressed air system in place. In addition, there is Telus cell tower on site for additional income (contact agent for more details). Close proximity to Veteran Boulevard NE and Queen Elisabeth II Highway.

Property details

Basic Info

MLS® #
A2204220
Property Type:
Commercial
Subtype:
Industrial
Subdivision:
East Lake Industrial
Price
$2,150,000
Sale/Lease:
For Sale
Size:
7,458 sq.ft.
Year Built:
1983 (42 years old)

Building Info

Structure Type:
Industrial
Garage:
No
Fence:
Basement:
No
Inclusions:
N/A

Lot / Land Info

Zoning:
IB-2

Listing Info

Possession:
Negotiable
Days on Market:
221
Media & Video

Experience this property!

Virtual Tour
Your Agent
  • Donna Wilson

    Sutton Group - Grande Prairie Professionals
    780-228-2224

    Email

    Ask a question
    Share This Listing
    Related Properties
    Categories