Property Details

8305 18 Avenue
Coleman (A2268444)

$749,000
2
3+1
1,749 ft²
Loading Listing...

Loan Term
Interest Rate
Loan Amount
Annual Tax
Ann. Insurance

* Amounts are estimates only. Final payment amounts may vary.

Description

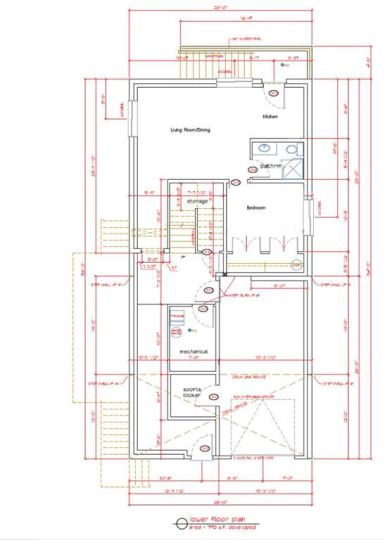
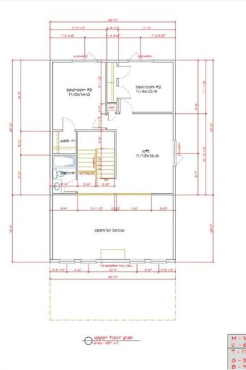
Exceptional quality new home near completion in the Crowsnest Pass. 3 bedrooms and 2.5 bathrooms in the main area plus an approved 1 bedroom 1 bathroom suite with its own outside entrance. The suite has its own laundry setup and a paved paved parking pad at the rear. Main floor has an open floor plan with high ceiling and big windows for the majestic mountain views. Modern kitchen with quartz counters. This home will be finished top to bottom with complete appliance packages for both living areas. Each floor has its own heating/cooling controls. The purchase price includes GST. Crowsnest Pass is a vibrant, active community close to Castle Mountain and Fernie Ski resorts, incredible Nordic ski facilities, and hundreds of miles of backcountry adventures. Crowsnest Pass also serves as an Alberta side bedroom community for the Elk Valley.

Property details

Basic Info

MLS® #
A2268444
Property Type:
Residential
Subtype:
Detached
Subdivision:
NONE
Price
$749,000
Sale/Lease:
For Sale
Size:
1,749 sq.ft.
Bedrooms:
2
Bathrooms:
3 full / 1 half
Year Built:
2025 (0 years old)

Building Info

New Construction:
Yes
Structure Type:
House
Building Style:
1 and Half Storey
Garage:
Yes
Parking:
Single Garage Attached
Basement:
Full
Features:
No Animal Home, Open Floorplan, Quartz Counters, Separate Entrance
Fireplaces:
1
Inclusions:
n/a
Appliances:
Central Air Conditioner, Dishwasher, Electric Stove, Microwave Hood Fan, Refrigerator, Washer/Dryer
Laundry:
Multiple Locations
Exterior Features:
BBQ gas line
Patio/Porch Features:
Deck

Neighborhood Info

Nearby Amenities:
Fishing, Golf, Park, Playground, Pool, Schools Nearby, Shopping Nearby

Lot / Land Info

Lot Size:
0.11 acres
Lot Features:
Back Lane, Back Yard, City Lot
Zoning:
Residential

Materials & Systems

Roof:
Asphalt Shingle
Exterior:
Mixed
Floors:
Carpet, Ceramic Tile, Vinyl Plank
Foundation:
Poured Concrete
Heating:
Forced Air, Natural Gas
Cooling:
Central Air
Amenities:
Fishing, Golf, Park, Playground, Pool, Schools Nearby, Shopping Nearby

Listing Info

Possession:
Negotiable
Your Agent
  • Donna Wilson

    Sutton Group - Grande Prairie Professionals
    780-228-2224

    Email

    Ask a question
    Share This Listing
    Related Properties
    Categories